
| 種 別 | アパート | 物件番号 | APR14116 |
| 所在地 | 徳島市国府町芝原 | ||
| 物件名 | |||
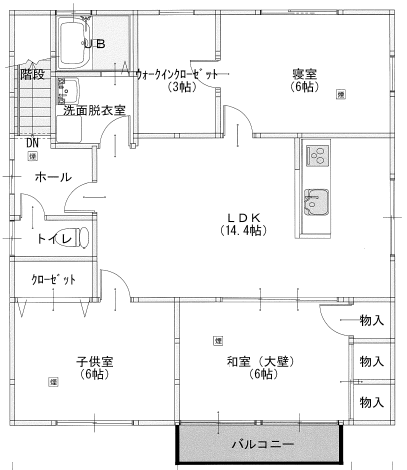
| 間取り | 3LDK | ||
| 構 造 | 木造 | 建築年 | 2014 年建築 |
| 賃 料 | 月額 65,000 円 | 部屋向き | 南向き |
| 敷金(保証金) | 規 模 | 地上 2 階 2 階部分 | |
| 礼 金 | 月額 65,000 円 | 共益費 | 月額 2,500 円 |
| 駐車場 | 2台 | CATV費 | |
| 駐車場費 | 2台目以降 3,300 円 | その他費用 | 仲介手数料要 保険加入要 保証会社加入要 クリーニング代65000円 |
| 交 通 | 北井上支所前バス停から徒歩 2分 |
学校区 | 北井上 小学校 北井上 中学校 |
| 設 備 | エアコン / フローリング / バス・トイレ別 / シャンプードレッサー |
||
| その他 | 取 引 | 仲介 | |
| P R | 北井上小・中学校のすぐ近くです!2階のお部屋です!フ
ァミリーの方にオススメです! |
||
![]() |
![]() ![]() ![]() ![]() ![]() ![]() ![]() ![]() ![]() ![]() |